โรงงาน อ.เชียงคาน
Unit ID: CX-108274 สถานะ : ว่าง
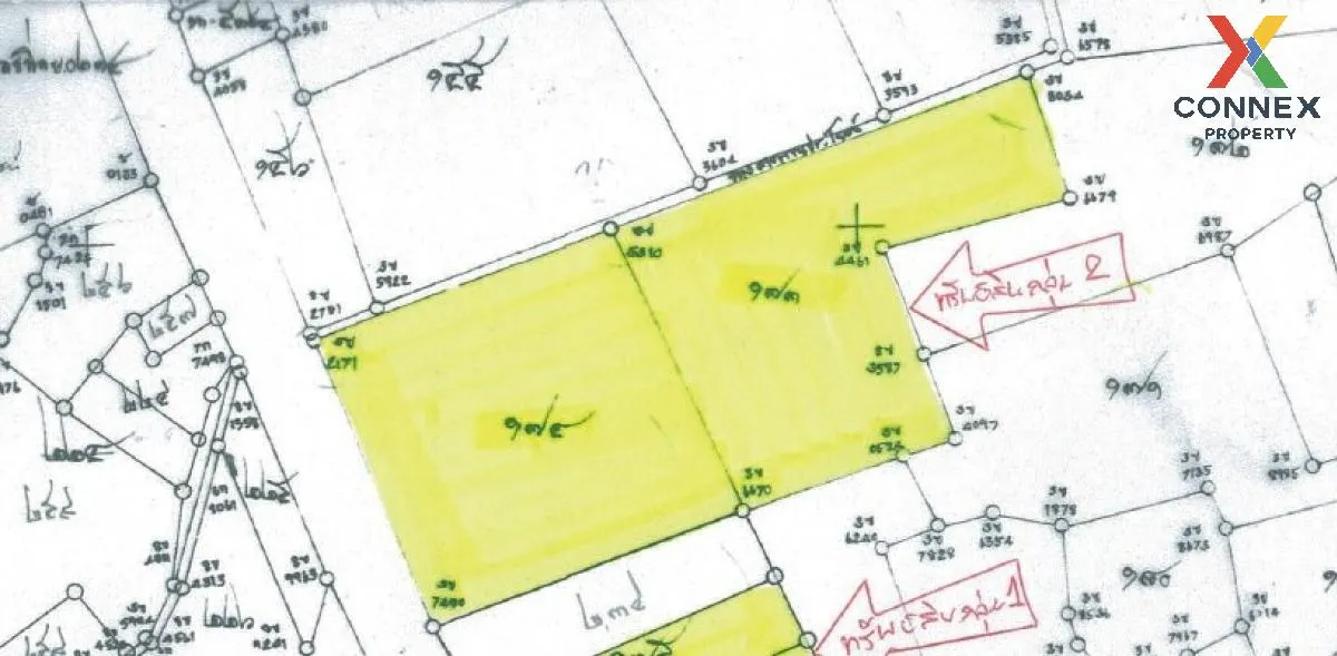
ตำบลนาซ่าว อำเภอเชียงคาน จังหวัดเลย 42110
ห้องนอน 12
ห้องน้ำ 10
ที่จอดรถ 0
จำนวนชั้น 1
พื้นที่ 34-3-22 ตร.ว.
พื้นที่ใช้สอย 13500ตร.ม.
ห้องนอน 12
ห้องน้ำ 10
ที่จอดรถ 0
34 ไร่ 3 งาน 22 ตร.ว.
จำนวนชั้น 1



